×
9,500,000,000₫

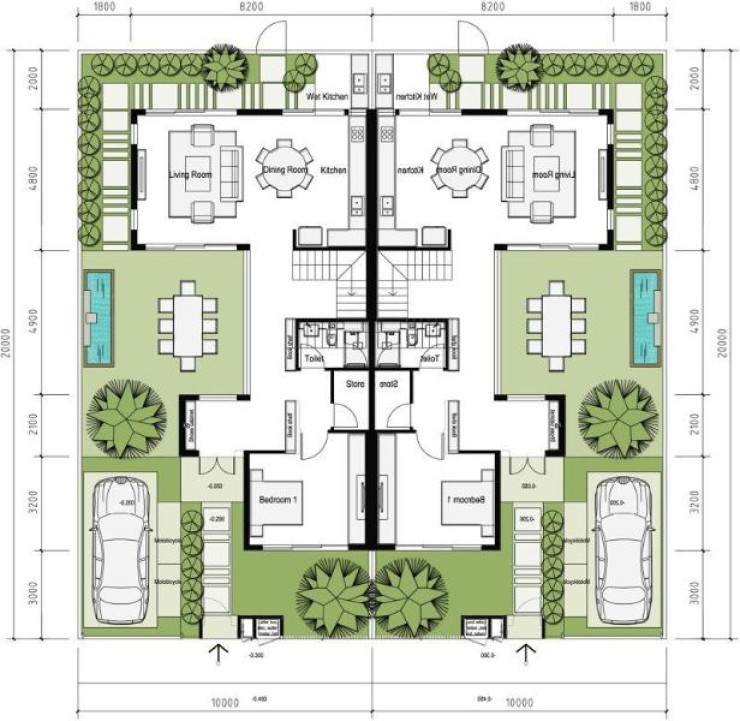
SwanBay được quy hoạch theo kiểu quần thể đan xen giữa nhà, cây xanh, hồ nước lớn và khu vườn trên không ấn tượng đồng thời thiết kế của dự án còn được giới chuyên gia đánh giá cao vì đạt được những tiêu chuẩn quốc tế đối với một khu đô thị mới hiện đại. Sở hữu nhà thuộc dự án SwanBay đồng nghĩa với việc bạn đang sở hữu một sản phẩm bất động sản vừa là nơi ở vừa là khu nghỉ dưỡng cao cấp

Size
  • M + 10₫
Danh mục Villa Swan Bay
Sub Category: uncategorized
Mã SP Voluptas irure id du